編輯 杰美小助手2021-07-14 10:55:32 1578
標簽:戶型解析
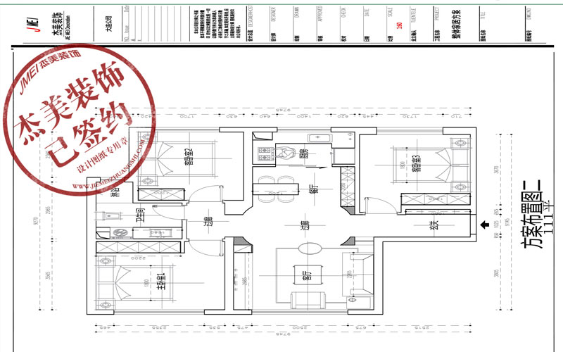
項目名稱:大連中庚當代藝術三期111平戶型圖全解析
項目面積:111平
項目地址:中山東港商圈,樓盤地址是港灣廣場達沃斯會議中心東1000米
占地面積:134700 ㎡平方米
設計單位:大連杰美裝飾工程有限公司
設計說明:
衛生間改造型極強,通風采光效果極好,此房屋缺少晾曬區域,客廳較為明亮。重要的位置一定要歸方。房間內儲物要留的多些,且此戶型房屋特別規整,一進門位置缺少玄關,鞋柜的深度可相對來說窄一些。

原始平面圖

優秀方案一

優秀方案二
上一篇:客廳裝修設計指南
24小時內,我們將發送報價,并和您取得聯系,請您保持電話暢通。